正反转锤式破碎机也就是可逆式锤式破碎机,这款破碎机是在小型锤破的基础上改进而来的。传统的锤破机转子只能往一个方向旋转。就像下面这个锤式破碎机就是不可逆锤式破碎机。这种破碎机在工作一段时间后,迎向进料口的一边的锤头会磨损,需要打开破碎机把锤头调换一下方向,才能继续使用。

pc式不可逆锤式破碎机
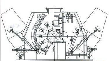
可逆式锤式破碎机如下图所示,它两边是对称的,转子即可以顺时针旋转,也可以逆时针旋转。两边对称,内部都安装有衬板。进料口有挡板,可以将物料从左右送入机器也可以从右边送入机器,这和旋转方向有关,可根据实际情况进行调整。可逆式锤式破碎机的优点是,转子可以往两个方向旋转。当一边的锤头磨损之后,可以把旋转方向改变一下,这时候可以用另一边锤头破碎物料。省得开箱手工改变锤头的方向,延长锤头一倍时间的寿命。
正反转锤式破碎机两边都可以用液压打开,自动化程度更高。锤头是锤式破碎机的重要设备,而且是易损件,所以可逆式破碎机正好解决了这个反转锤头的问题。
正反转可逆锤式破碎机用来破碎脆性物料尤其适用,像石膏石,石灰石,煤类似于这些的硬度不大的物料都非常适用。这款破碎机破碎比大。受到很多客户的喜爱。

可逆式锤破内部结构

可逆式锤式破碎机结构图